Ներածություն
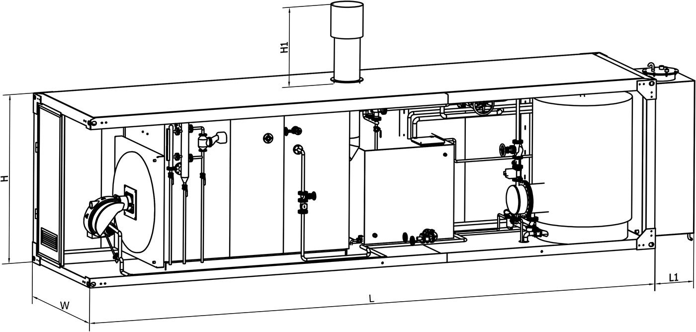
Սա փաթեթային միավոր է: Այն պարունակում է էլեկտրաէներգիա, վառելիք, ջուր, մաքրման համակարգ և բոլոր տեղադրման սարքավորումները: Դուք պարզապես պետք է սեղմեք կոճակը՝ այն ակտիվացնելու համար: Այն շարժական միավոր է, այն կարող է հեշտությամբ տեղափոխվել և օգտագործվել ցանկալի վայրում և վիճակում՝ իր հատուկ տարաների շնորհիվ: Շնորհիվ իր կառուցվածքում հատուկ նախագծված գոլորշու գեներատորի և կաթսաների, այն շատ կարճ ժամանակում բավարարում է ձեր բարձր արդյունավետությամբ գոլորշու, տաք ջրի և կոմունալ ջրի կարիքները: Քանի որ տարան ջերմամեկուսացված է, այն հաջողությամբ աշխատում է բոլոր եղանակային պայմաններում: Այն կարող է նախագծվել և արտադրվել ամբողջությամբ՝ համաձայն միայն գոլորշի, տաք ջուր, կոմունալ ջուր կամ դրանք բոլորը արտադրելու անհրաժեշտության: Այն հատուկ նախագծված է տարբեր կարիքների համար: Քանի որ բոլոր տեղադրման միացումները գալիս են մեկ կետից, դրանց օգտագործումը, հավաքումը և պահպանումը շատ գործնական են:
Քանի որ տարաները հատուկ նախագծված են օգտագործվող սարքավորումների համաձայն, դրանք շատ ամուր, օգտակար և երկարակյաց են: Դրանց չափերը փոքր են, և ներքին հարդարանքը նախագծված է այնպես, որ օպերատորները կարողանան հեշտությամբ տեղաշարժվել: Տարաները նախագծված են այնպես, որ բոլոր սարքավորումները հեշտությամբ հանվեն և տեղադրվեն։ Առջևի կափարիչը կարող է ամբողջությամբ բացվել, ուստի սպասարկումն ու վերանորոգումը շատ հեշտ են։ Այն կարող է արտադրվել ցանկացած վառելիքի համար (դիզելային վառելիք, վառելիքային յուղ, գազ, հեղուկ գազ և այլն)։
Կիրառման ոլորտներ
Բետոնե տաղավարների արտադրության օբյեկտներ (չորացում)
Ճանապարհների, թունելների, ամբարտակների, կամուրջների և մետրոյի շինհրապարակներ (գոլորշի + կենցաղային տաք ջուր + ջեռուցման ջուր)
Բետոնի արտադրության կայաններ (ագրեգատների տաքացում գոլորշու միջոցով և խառնիչի հավելանյութի ջրով տաքացում)
Նախապատրաստված բետոնի արտադրության օբյեկտներ
Դաշտային հոսպիտալներ
Զինվորական ճամբարներ և կառավարման կենտրոններ։







